Planning Drawings
Clear, accurate planning drawings designed to give your application the best chance of approval.
For most new-build extensions, the process is straightforward — but it still needs to be done properly. The drawings submitted form the basis of how your proposal is assessed, so clarity and accuracy are essential.
What’s Included
Each planning package typically includes:Existing floor plansProposed floor plansExisting elevationsProposed elevationsSite location planBlock plan
All drawings are prepared to meet local authority requirements and submitted directly through the Planning Portal on your behalf.
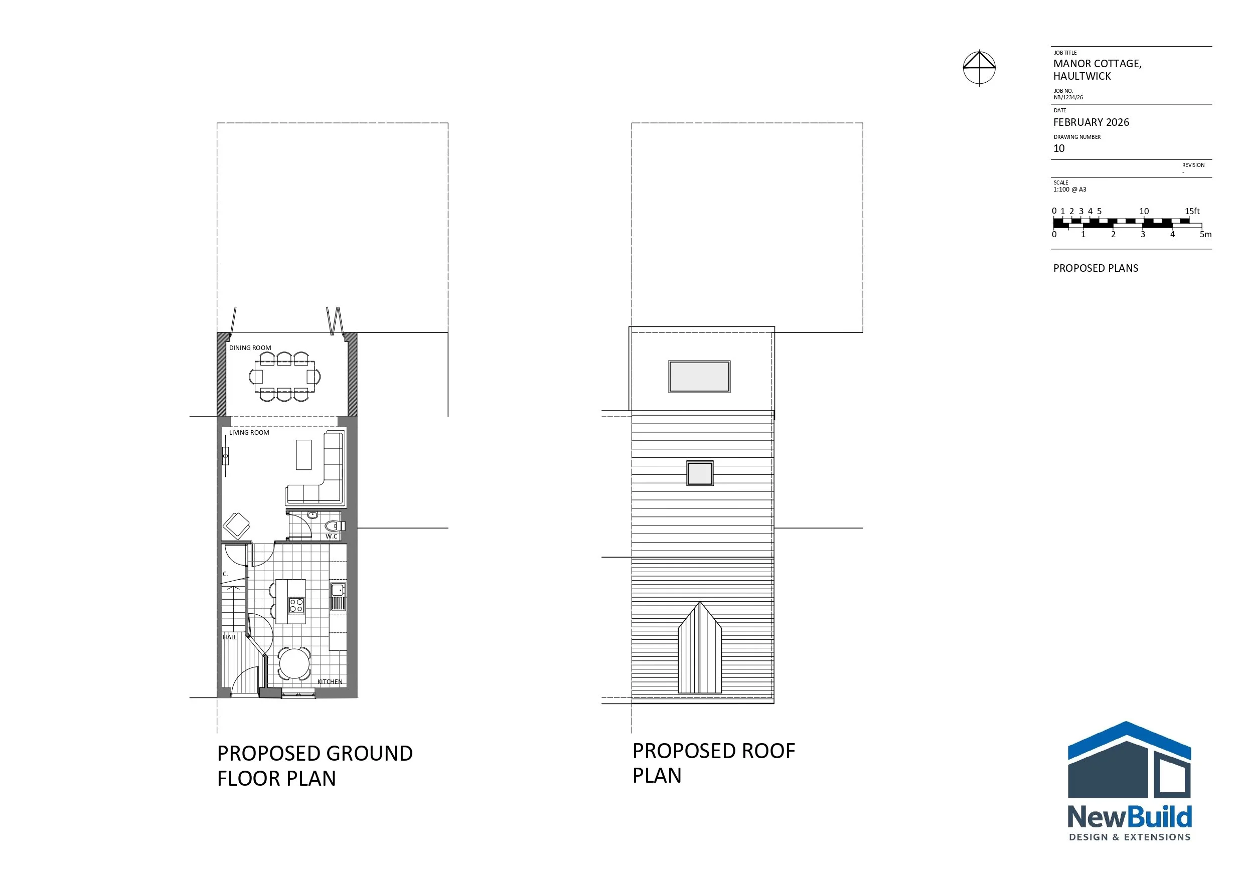
Example Project
Below is an example of a typical new-build extension project, including:
Existing layout
Proposed extension design
Elevations showing the changes
This reflects the level of detail and clarity you can expect with every project.
Why It Matters
Planning officers aren’t looking for flashy designs — they’re looking for clear, policy-compliant proposals they can assess quickly.
That’s why the focus is on:
Clean, easy-to-read drawings
Accurate dimensions and relationships
Proposals that align with planning guidelines
A straightforward submission process
No overcomplication. Just drawings that do their job properly.
Example Existing
Example Proposed

